• Property Analysis
  • Quick Budget Tool
Log In Sign Up
3D Rendering
Add to Top
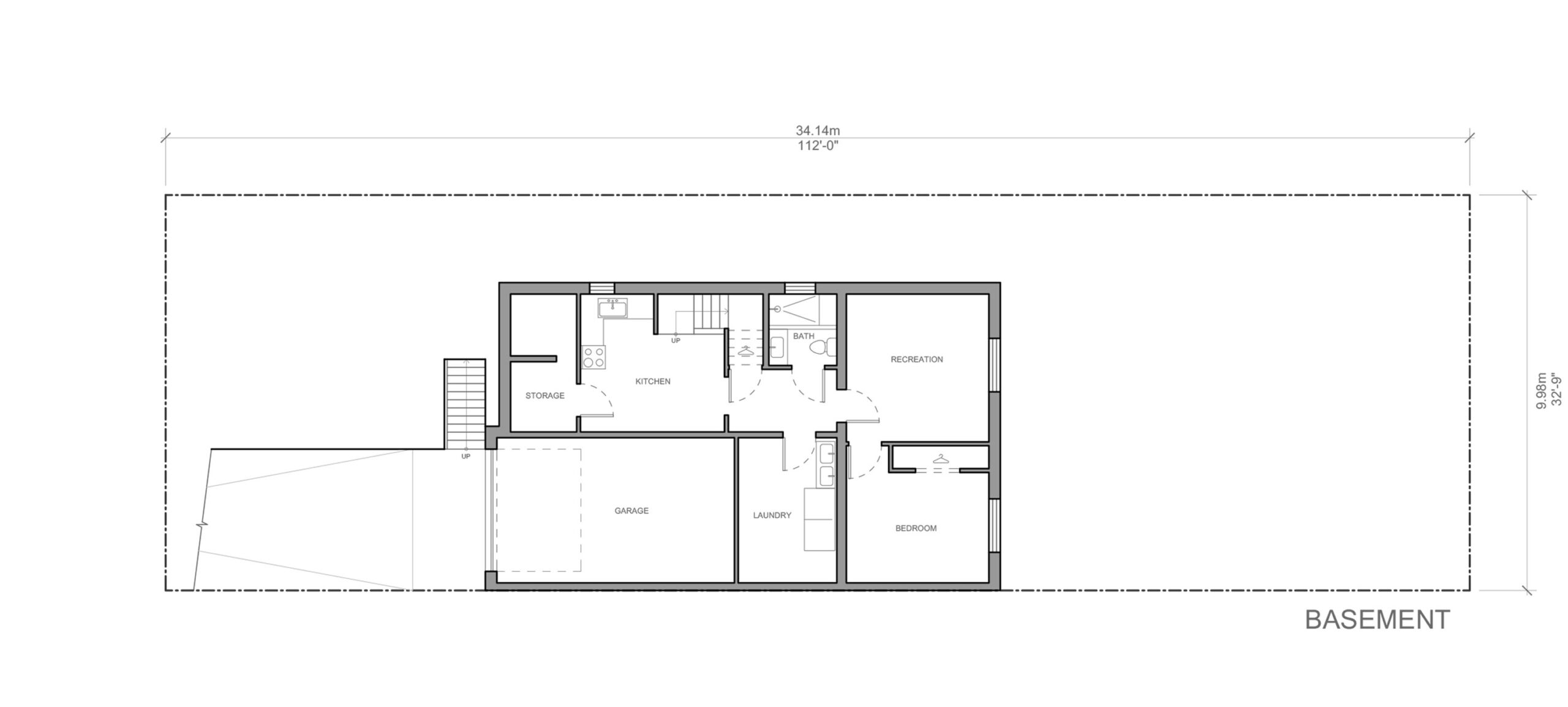
Floor Plan 1
Floor Plan
Floor Plan 2
Floor Plan
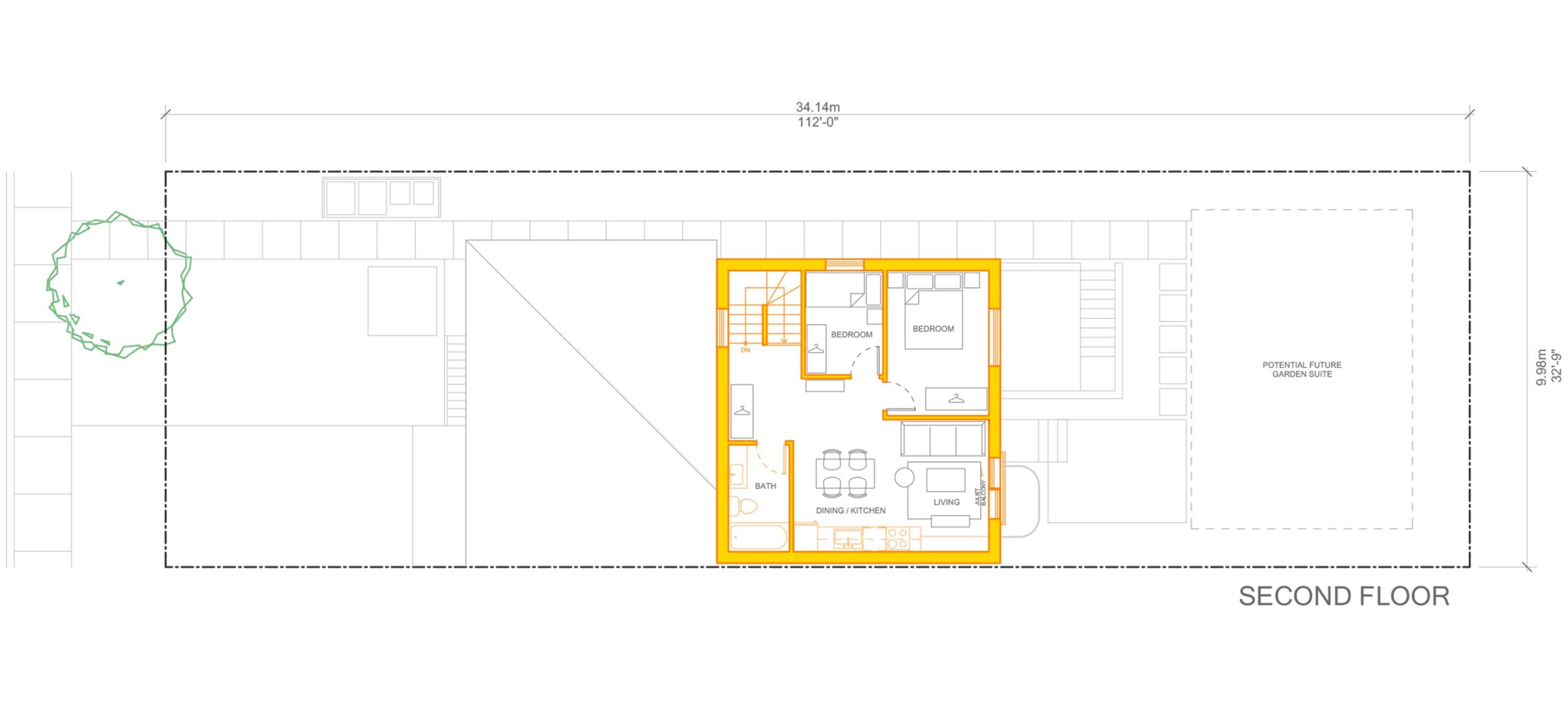
Floor Plan 3
Floor Plan
Design Catalogue / Renovation / Add to Top
Ideas for adding a unit to your home

Add a Unit to the Top

The rear addition case study involves adding a distinct living unit by building a new structure connected to the rear of the existing structure of the house. The only changes made to the existing building are to the rear wall which now acts as the fire separation and unit demising wall. Unit access to the rear addition exists off the side yard of the site. Major considerations include allowable building area, construction implications, and plumbing.

Design Specifications

# of Units: 1

Existing House
4 Bed / 2 Bath
107.3 sqm (+107.3 sqm basement and garage)

# of Units: 2

Unit 1 – Existing House
4 Bed / 2 Bath
101 sqm (+107.3 sqm basement and garage)

Unit 2 – Top Addition
2 Bed / 1 Bath
60.5 sqm

Shared Space
Laundry
Storage Rooms

Cost Considerations

*This sample design might cost somewhere in the range of $680,000 - $1,203,000

Whenever you are deciding what type of unit to add, it is important to understand what the major cost considerations are. For a top addition, these are:

  • Unit Access
  • Unit Egress
  • Fire and Sound Separation
  • New Bathroom(s)
  • New Kitchen(s)
Privacy Policy

This website, including all data and information incorporated herein, is being provided for information purposes only and is not intended for and has not been approved for use for construction at any location. For certainty, The University of Toronto, John H. Daniels Faculty of Architecture Landscape and Design and LGA Architectural Partners provides no representation or warranty regarding any use of or reliance upon this website, including no representation or warranty that this website complies with applicable laws (including any applicable zoning by-laws or building code requirements) and no representation or warranty that any cost estimates included in or based upon this website have been validated by the applicable market. Any use of or reliance upon this website by any person for any purpose shall be at such person’s sole risk and The University of Toronto, John H. Daniels Faculty of Architecture Landscape and Design and LGA Architectural Partners shall have no liability or responsibility for any such use of or reliance upon this website by any person for any purpose. Prior to any use of or reliance upon this website by any person for any purpose, consultation with a professional architect duly licensed in the applicable jurisdiction is strongly recommended.

©2025 ReHousing. All rights reserved.