• Property Analysis
  • Quick Budget Tool
Log In Sign Up
3D Rendering
Attached Garage Conversion
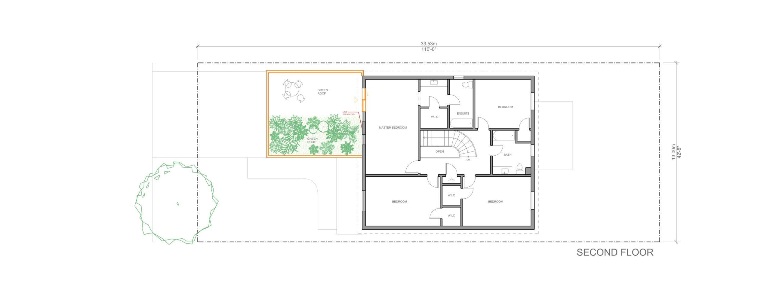
Second Floor
Floor Plan
Ground Floor
Floor Plan
Design Catalogue / Renovation / Attached Garage Conversion
Ideas for converting an unfinished space

Ideas for converting an unfinished space

This garage conversion case study involves creating a distinct living unit by adding to the existing structure of the garage to create a self-sufficient living unit. Existing walls are insulated from the inside and fire separated from the rest of the house. The project introduces a new kitchen and bathroom with very few additional partition walls. Plumbing is a major consideration as the existing garage has no connections for the required kitchen and bathroom.

Design Specifications

# of Units: 1

Unit 1 – Existing House
4 Bed / 2.5 Bath
278.8 sqm (+ 139.4 sqm basement)

# of Units: 2

Unit 1 – Existing House
4 Bed / 2.5 Bath
278.8 sqm (+ 139.4 sqm basement)

Unit 2 – Garage Conversion
Studio / 1 Bath
43.5 sqm

Cost Considerations

*This sample design might cost somewhere in the range of $195,000 - $367,000

Whenever you are deciding what type of unit to add, it is important to understand what are the major cost considerations. For a basement unit these are:

  • Retrofitting insulation
  • New bathroom
  • New kitchen
  • Connections to main home (plumbing/electrical/communications)
  • New openings (windows/doors)
Privacy Policy

This website, including all data and information incorporated herein, is being provided for information purposes only and is not intended for and has not been approved for use for construction at any location. For certainty, The University of Toronto, John H. Daniels Faculty of Architecture Landscape and Design and LGA Architectural Partners provides no representation or warranty regarding any use of or reliance upon this website, including no representation or warranty that this website complies with applicable laws (including any applicable zoning by-laws or building code requirements) and no representation or warranty that any cost estimates included in or based upon this website have been validated by the applicable market. Any use of or reliance upon this website by any person for any purpose shall be at such person’s sole risk and The University of Toronto, John H. Daniels Faculty of Architecture Landscape and Design and LGA Architectural Partners shall have no liability or responsibility for any such use of or reliance upon this website by any person for any purpose. Prior to any use of or reliance upon this website by any person for any purpose, consultation with a professional architect duly licensed in the applicable jurisdiction is strongly recommended.

©2025 ReHousing. All rights reserved.