• Property Analysis
  • Quick Budget Tool
Log In Sign Up
3D Rendering
Convert a Floor
Third Floor
Floor Plan
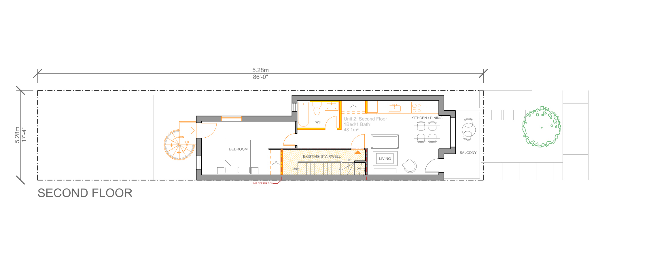
Second Floor
Floor Plan
Ground Floor
Floor Plan
Basement
Floor Plan
Design Catalogue / Renovation / Convert a Floor
Ideas for converting a finished space

Convert a Floor

This horizontal split case study involves creating distinct living units by subdividing the existing structure of the house in the horizontal axis, typically at each floor level. Interior walls are added to create the necessary rooms within each unit and demising walls are added between units to create necessary fire separations. The project introduces new kitchens and bathrooms for each unit. Major considerations include plumbing, fire separation, and unit access.

Design Specifications

# of Units: 1

Unit 1 – Ground Floor
3 Bed / 1.5 Bath
165.2 sqm (+ 63.4 sqm basement)

# of Units: 3

Unit 1 – Ground Floor
1 Bed / 1 Bath
51.6 sqm

Unit 2 – Second Floor
1 Bed / 1 Bath
58.4 sqm

Unit 3 – Third Floor
Studio / 1 Bath
41.8 sqm

Cost Considerations

*This sample design might cost somewhere in the range of $295,000 - $504,000

Whenever you are deciding what type of unit to add, it is important to understand what are the major cost considerations. For a basement unit these are:

  • Unit access
  • Unit egress
  • Fire and sounds separation
Privacy Policy

This website, including all data and information incorporated herein, is being provided for information purposes only and is not intended for and has not been approved for use for construction at any location. For certainty, The University of Toronto, John H. Daniels Faculty of Architecture Landscape and Design and LGA Architectural Partners provides no representation or warranty regarding any use of or reliance upon this website, including no representation or warranty that this website complies with applicable laws (including any applicable zoning by-laws or building code requirements) and no representation or warranty that any cost estimates included in or based upon this website have been validated by the applicable market. Any use of or reliance upon this website by any person for any purpose shall be at such person’s sole risk and The University of Toronto, John H. Daniels Faculty of Architecture Landscape and Design and LGA Architectural Partners shall have no liability or responsibility for any such use of or reliance upon this website by any person for any purpose. Prior to any use of or reliance upon this website by any person for any purpose, consultation with a professional architect duly licensed in the applicable jurisdiction is strongly recommended.

©2025 ReHousing. All rights reserved.