• Property Analysis
  • Quick Budget Tool
Log In Sign Up
3D Rendering
Flats Narrow
Thrid Floor
Floor Plan
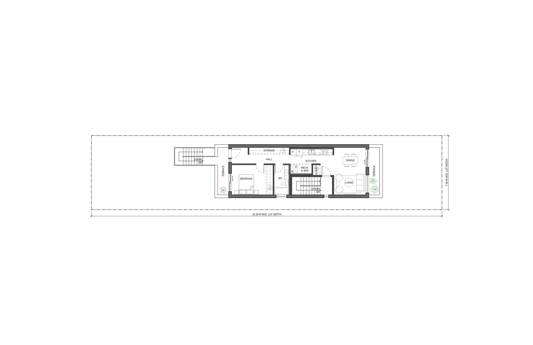
Second Floor
Floor Plan
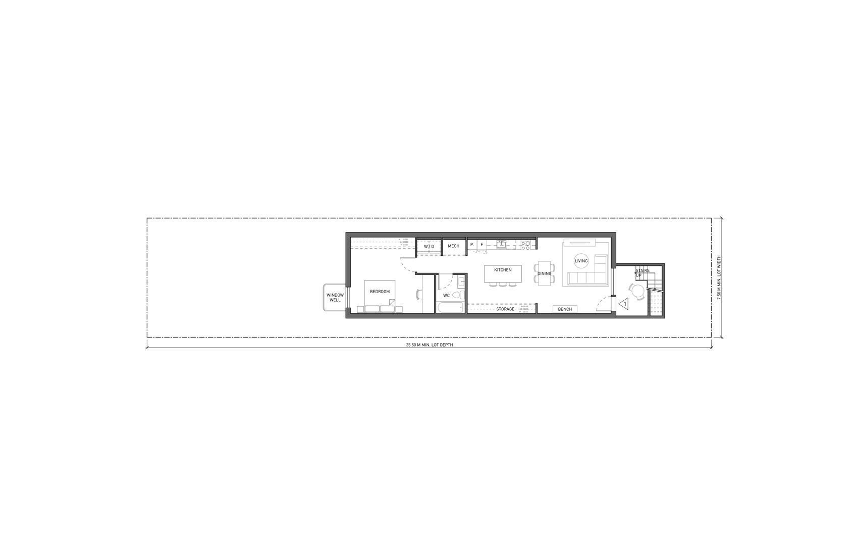
Ground Floor
Floor Plan
Basement Floor
Floor Plan
Design Catalogue / New Multiplex Building / Flats Narrow
Ideas for New Multiplexes

New Multiplex - Flats Narrow

In this fourplex each unit occupies a different floor. Units 1 and 2 are accessed directly, while Units 3 and 4 are accessed by shared staircases. This design uses one interior shared stair and an exterior stair for the second exit at the back of the property.

Building Details

Total Unit Count: 4 Units | Total Floor Area = 352.1 sqm

🏠 Unit 1
πŸ›οΈ 1 Bed
🚿 1 Bath
79.89 m2
🏠 Unit 2
πŸ›οΈ 1 Bed
🚿 1 Bath
70.69 m2
🏠 Unit 3
πŸ›οΈ 2 Bed
🚿 1 Bath
70.69 m2
🏠 Unit 4
πŸ›οΈ 1 Bed
🚿 1 Bath
55.63 m2

Cost Considerations

*This sample design might cost somewhere in the range of $1,355,000 - $1,832,000
Privacy Policy

This website, including all data and information incorporated herein, is being provided for information purposes only and is not intended for and has not been approved for use for construction at any location. For certainty, The University of Toronto, John H. Daniels Faculty of Architecture Landscape and Design and LGA Architectural Partners provides no representation or warranty regarding any use of or reliance upon this website, including no representation or warranty that this website complies with applicable laws (including any applicable zoning by-laws or building code requirements) and no representation or warranty that any cost estimates included in or based upon this website have been validated by the applicable market. Any use of or reliance upon this website by any person for any purpose shall be at such person’s sole risk and The University of Toronto, John H. Daniels Faculty of Architecture Landscape and Design and LGA Architectural Partners shall have no liability or responsibility for any such use of or reliance upon this website by any person for any purpose. Prior to any use of or reliance upon this website by any person for any purpose, consultation with a professional architect duly licensed in the applicable jurisdiction is strongly recommended.

Β©2025 ReHousing. All rights reserved.